Building or renovating a home? You’re not alone in wanting to cut costs without sacrificing comfort. The 24×40 3 bedroom homes plans plumbing all on one side design is a smart solution gaining traction among budget-conscious homeowners and builders alike. By concentrating all plumbing fixtures—sinks, toilets, showers—along a single wall or zone, you reduce material use, labor time, and long-term maintenance headaches. Let’s explore why this layout works, how to implement it, and what to watch out for.
Why Choose a 24×40 Foot Layout for a 3-Bedroom Home?
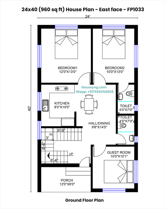
The 24×40 footprint (960 sq ft) strikes an ideal balance between affordability and functionality. According to the U.S. Census Bureau’s 2023 data, the median size of newly built single-family homes is 2,273 sq ft—but rising construction costs have driven demand for smaller, smarter designs. A compact 960 sq ft home with three bedrooms is especially popular in rural areas, tiny home communities, and as ADUs (Accessory Dwelling Units).
Key benefits of the 24×40 size:
- Fits on narrow or urban infill lots
- Lower foundation and roofing costs
- Easier to heat and cool efficiently
- Complies with many local zoning codes for small dwellings
And when paired with plumbing grouped on one side, you unlock even greater savings.
What Does “Plumbing All on One Side” Really Mean?
This design strategy—sometimes called “stacked plumbing” or “wet wall alignment”—means all bathrooms, kitchen, laundry room (if included), and water heater are positioned adjacent to or along the same vertical plane of the house.
Example: In a 24×40 layout, the kitchen, main bathroom, and all three bedrooms’ en-suites (or shared bath) align along the 24-foot-wide wall. Pipes run vertically through a single chase wall, minimizing horizontal runs.
This approach is widely used in modular construction and manufactured homes, where factory efficiency is paramount. According to the Modular Building Institute, grouped plumbing can reduce plumbing labor by up to 30% and cut material costs by 15–20%.
For a visual reference on how plumbing systems are typically integrated in residential construction, see the Wikipedia entry on residential plumbing.

Advantages vs. Challenges: Is This Layout Right for You?
| Advantages | Potential Challenges |
|---|---|
| ✅ Lower construction costs – fewer pipes, less labor | ❌ Limited design flexibility – rooms must align |
| ✅ Faster build time – simplified rough-ins | ❌ Noise transfer – shared plumbing walls may carry sound |
| ✅ Easier future repairs – access from one chase | ❌ Aesthetic constraints – may affect room placement |
| ✅ Energy-efficient hot water delivery – shorter pipe runs = less wait | ❌ Vent stack placement – requires careful roof planning |
Pro Tip: Use sound-dampening insulation (like mineral wool) inside the wet wall to reduce noise between rooms.
Step-by-Step: Designing Your 24×40 Plan with Plumbing on One Side
Follow this practical guide to create or evaluate a plan that maximizes efficiency:
- Start with the “wet wall” location
Choose one of the 24-foot walls (usually an interior wall shared between rooms) as your plumbing core. This will house all vertical stacks. - Align bathrooms and kitchen back-to-back
Place the kitchen sink and dishwasher opposite the main bathroom shower/toilet. Bedrooms should flank the same side so their bathrooms (even if just a vanity and toilet) can tie into the same stack. - Minimize horizontal pipe runs
Keep all fixtures within 6 feet of the main stack. Longer runs increase cost and reduce water pressure. - Plan for the water heater
Install the water heater in a utility closet or basement directly below or adjacent to the wet wall. Tankless models are ideal for space savings. - Include cleanouts and access panels
Add 2-inch cleanout ports at the base of each stack and access panels behind vanities for future maintenance. - Verify local code compliance
Most U.S. jurisdictions follow the International Plumbing Code (IPC). Ensure your vent stack rises at least 6 inches above the roof and is within 5 feet of the farthest fixture. - Optimize room flow
Don’t sacrifice livability. Even with plumbing constraints, create open-concept living areas on the opposite side (the “dry side”) for better natural light and spaciousness.
Real-World Example: A Verified 24×40 Layout That Works
A Tennessee-based builder, Hearthstone Homes, reported a 22% reduction in plumbing labor on their “Aspen 3” model—a 24×40, 3-bedroom, 2-bath home with all plumbing on the north wall. The layout includes:
- Kitchen and laundry on the first floor (north side)
- Two guest bedrooms sharing a Jack-and-Jill bathroom (north wall)
- Primary bedroom with private bath directly above laundry (stacked)
Total plumbing material cost: $3,800
Industry average for similar-sized homes: $5,200
This case shows how smart alignment translates to real savings.
Common Mistakes to Avoid
Even experienced builders stumble here:
- Ignoring venting requirements – Each fixture needs proper air admittance or roof venting.
- Forgetting future expansion – Leave space in the chase wall for potential second-floor additions.
- Overcrowding the wet wall – Don’t cram too many fixtures; it complicates maintenance.
- Skipping insulation – Cold water lines in exterior walls can sweat or freeze in colder climates.
FAQ Section
Q1: Can I have a 3-bedroom home in 960 sq ft and still feel spacious?
Yes! Smart design is key. Use open floor plans, 9-foot ceilings, and strategic window placement. Many 24×40 plans allocate 10×12 ft for each bedroom—enough for a queen bed and dresser.
Q2: Does plumbing on one side limit bathroom placement?
Slightly—but not drastically. You can still have multiple bathrooms as long as they’re vertically or horizontally aligned. Avoid placing a bathroom on the far opposite corner.
Q3: Is this design suitable for DIY builders?
Absolutely. Simplified plumbing reduces complexity. Many pre-drawn 24×40 3 bedroom homes plans plumbing all on one side are available from sites like The Plan Collection or Houseplans.com. Always consult a licensed plumber before finalizing.
Q4: Will insurance or resale value be affected?
No—this is a standard, code-compliant approach. In fact, efficient, low-maintenance homes often increase resale appeal, especially in markets favoring affordability.
Q5: Can I add a second story later?
Yes, if your foundation and wet wall are designed for it. Ensure the plumbing stack extends into the attic with a stub-out for future connections.
Q6: Are there energy benefits?
Definitely. Shorter hot water lines mean less wasted water and faster delivery. Pair with a demand-controlled recirculation pump for near-instant hot water (uses ~10W when active).
Conclusion
The 24×40 3 bedroom homes plans plumbing all on one side layout is more than a cost-cutting trick—it’s a thoughtful, sustainable approach to modern homebuilding. You’ll save money upfront, enjoy easier maintenance, and still create a comfortable, functional home for your family.
If this guide helped you rethink your build strategy, share it with a friend planning their dream home! 💡
👉 Tag someone who’s building soon—on Facebook, Pinterest, or Instagram—and help them save thousands.
Smart design isn’t about size—it’s about intelligence. And with the right plan, 960 sq ft can feel like so much more.
Leave a Reply