If you’re developing or managing affordable housing in Pennsylvania, you’ve likely encountered the critical need for Approved PHFA HUD Sprinkler Fire Protection Plumbing Drawings PDF Pennsylvania. These documents aren’t just paperwork—they’re legal, life-saving blueprints that ensure your building meets federal and state safety standards. Missing or outdated drawings can delay funding, trigger inspections, or even halt occupancy. Don’t worry—you’re not alone, and this guide will walk you through everything you need to know, step by step.
What Are PHFA HUD Sprinkler Fire Protection Plumbing Drawings?
The Pennsylvania Housing Finance Agency (PHFA) administers federal HUD (U.S. Department of Housing and Urban Development) programs for affordable housing. As part of compliance, projects receiving PHFA/HUD funding must include fire protection systems, especially automatic fire sprinklers, as mandated by the 2018 International Building Code (IBC) and HUD Handbook 4350.3.
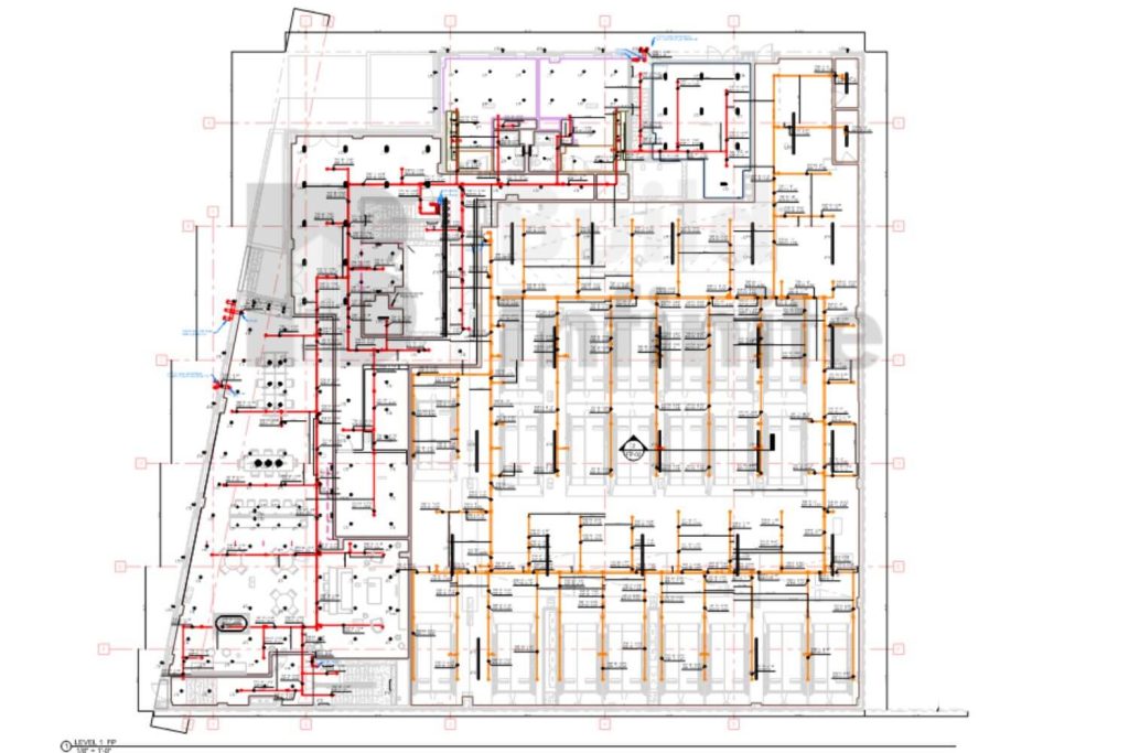
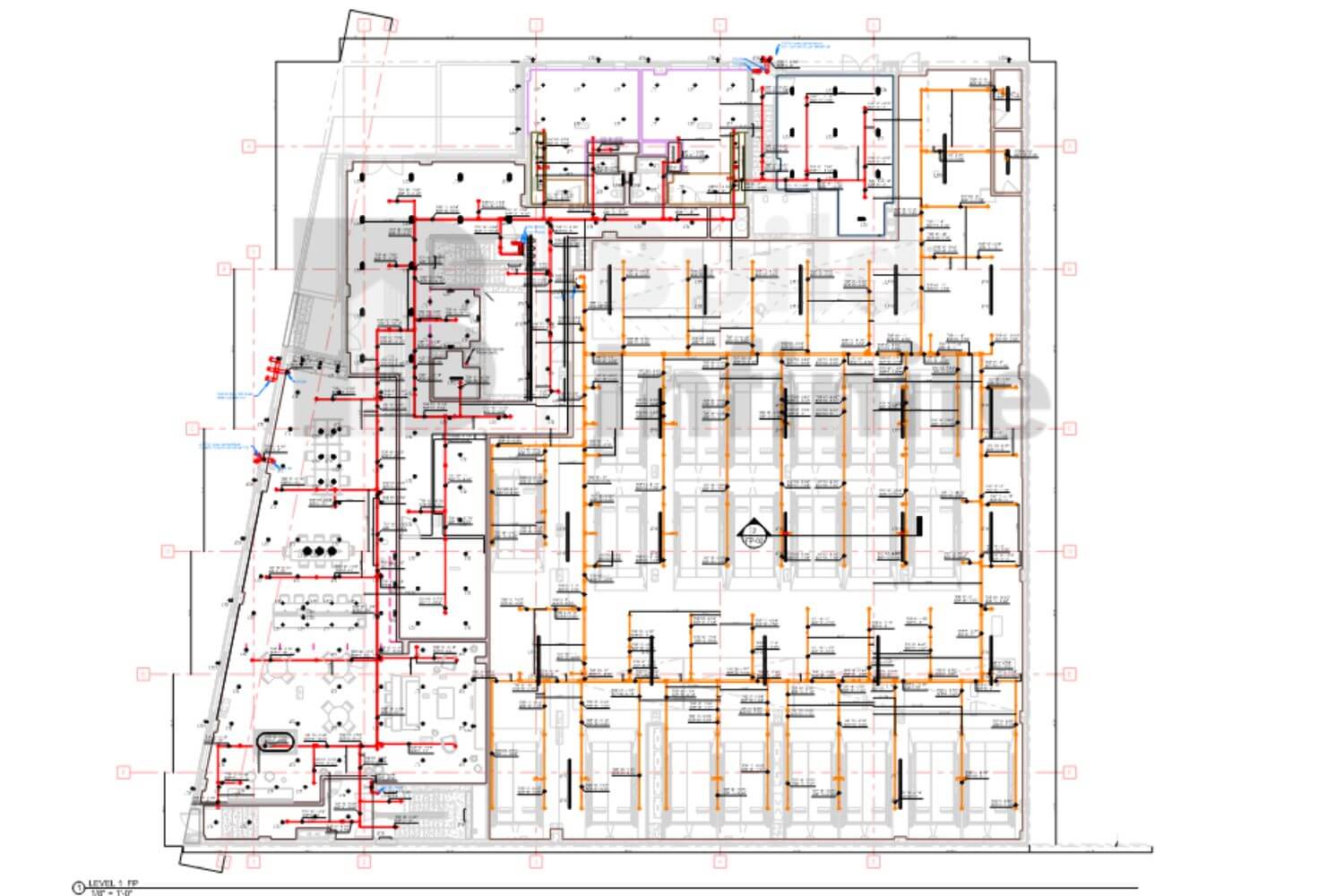
These plumbing and fire protection drawings are technical schematics showing:
- Sprinkler head placement
- Water supply lines and pressure specs
- Drainage and backflow prevention
- Integration with alarm systems
All drawings must be sealed by a licensed Pennsylvania professional engineer (PE) and approved by PHFA before construction begins.
🔍 Did You Know? According to NFPA (National Fire Protection Association), sprinklers reduce the risk of dying in a home fire by 80% and cut property damage by 70%.
Why Are These Drawings Required in Pennsylvania?
Pennsylvania state law aligns with HUD requirements for multifamily and senior housing funded through PHFA programs. The key reasons include:
- Life Safety: HUD-funded housing often serves vulnerable populations (seniors, low-income families).
- Funding Compliance: PHFA will not release funds without approved fire protection plans.
- Legal Liability: Non-compliance can result in fines, lawsuits, or project shutdowns.
- Insurance Requirements: Most carriers require NFPA 13-compliant systems for coverage.
A 2023 PHFA audit revealed that 22% of rejected submissions were due to incomplete or non-compliant fire protection drawings—making this one of the top reasons for application delays.

How to Obtain Approved Drawings: Step-by-Step Guide
Follow this verified 5-step process used by successful developers across PA:
Step 1: Confirm Your Project’s Requirements
Not all PHFA projects require full sprinkler systems. Check if your project falls under:
- HUD Section 202 (elderly housing)
- HUD Section 811 (disabled housing)
- Low-Income Housing Tax Credit (LIHTC) with PHFA involvement
💡 Tip: Review HUD Handbook 4350.3 Rev-1, Chapter 7, which mandates automatic sprinklers in all new construction for covered projects.
Step 2: Hire a Licensed Fire Protection Engineer
Your engineer must:
- Hold a valid PA PE license
- Have experience with NFPA 13 and HUD specifications
- Use software like AutoCAD MEP or Revit for precise schematics
Step 3: Prepare the Drawings Package
Include the following in your PDF submission:
- Cover sheet with project name, address, PHFA ID
- Hydraulic calculations (water flow, pressure loss)
- Equipment schedule (sprinkler types, pipe materials)
- Floor plans with sprinkler spacing (max 12 ft apart per NFPA 13)
- Connection details to domestic water or fire pump
Step 4: Submit to PHFA via the e-Builder Portal
PHFA uses e-Builder, an online compliance platform. Upload:
- PDF drawings (PDF/A format recommended)
- Engineer’s seal and signature
- Supporting calculations (.xls or .pdf)
Allow 10–15 business days for review.
Step 5: Address Comments & Resubmit (If Needed)
Common resubmission reasons include:
- Missing hydraulic calcs
- Incorrect pipe sizing (must be Schedule 40 steel or CPVC rated for fire service)
- Lack of backflow preventer details
Once approved, PHFA issues an Approval Letter—save this with your project records.
Approved vs. Non-Approved Drawings: Key Differences
| Feature | Approved Drawings | Non-Approved Drawings |
|---|---|---|
| Engineer Seal | ✅ Licensed PA PE stamp | ❌ Missing or expired |
| NFPA 13 Compliance | ✅ Meets spacing & pressure rules | ❌ Generic or residential-grade |
| HUD Reference | ✅ Cites HUD 4350.3, Ch. 7 | ❌ No federal standards cited |
| Water Supply | ✅ Dedicated or combined with domestic (with backflow) | ❌ Shared line without backflow |
| File Format | ✅ Searchable PDF with layers | ❌ Scanned image or JPG |
⚠️ Warning: Using non-approved drawings may void your PHFA funding agreement and violate the Pennsylvania Uniform Construction Code (UCC).
Where to Find Official Resources
While many contractors offer templates, always verify against primary sources:
- PHFA Developer Resources Portal
- HUD Handbook 4350.3 (Rev-1, 2023)
- NFPA 13: Standard for the Installation of Sprinkler Systems
For foundational knowledge on fire protection engineering principles, see the NFPA Wikipedia entry, which outlines the organization’s role in U.S. safety standards.
Common Mistakes to Avoid
- Assuming residential rules apply – HUD projects follow commercial fire codes.
- Using outdated codes – Pennsylvania adopted the 2018 IBC, not 2021 (as of 2025).
- Skipping hydraulic calculations – PHFA requires full calcs, not just layout.
- Submitting non-searchable PDFs – Scanned drawings are rejected automatically.
- Ignoring backflow prevention – Required when sprinklers connect to potable water.
A 2024 case in Pittsburgh saw a $4M LIHTC project delayed by 8 weeks due to a missing backflow diagram—easily preventable with proper planning.
FAQ Section
Q1: Are fire sprinklers mandatory for all PHFA-funded projects in Pennsylvania?
A: Yes, if the project is new construction under HUD programs like Section 202, 811, or LIHTC with PHFA oversight. Rehabilitation projects may have exceptions—check with your PHFA compliance officer.
Q2: Can I use a national engineering firm, or must the engineer be PA-licensed?
A: The engineer must hold an active Pennsylvania PE license. Out-of-state firms can collaborate, but the seal must be from a PA-licensed professional.
Q3: What file format should the PDF be in?
A: Submit a searchable, vector-based PDF (not a scanned image). Include layers if using AutoCAD. PHFA’s e-Builder system rejects rasterized files.
Q4: How long does PHFA take to approve drawings?
A: Standard review is 10–15 business days. Expedited reviews are not available unless tied to a federal deadline (e.g., LIHTC carryover).
Q5: Do I need separate plumbing and fire protection drawings?
A: They can be combined, but fire sprinkler lines must be clearly distinguished (e.g., red lines vs. blue for domestic water). Label all components per NFPA 13.
Q6: Where can I download a sample approved drawing?
A: PHFA does not publish public templates for liability reasons. However, your architect or engineer should have HUD-compliant examples from past PA projects.
Conclusion
Securing Approved PHFA HUD Sprinkler Fire Protection Plumbing Drawings PDF Pennsylvania isn’t just a box to check—it’s a vital step in ensuring your affordable housing project is safe, fundable, and compliant. By following the steps above, avoiding common pitfalls, and partnering with qualified Pennsylvania engineers, you’ll streamline approvals and protect future residents.
If this guide saved you time or clarified a confusing requirement, please share it on LinkedIn or with your development team—helping others avoid costly mistakes strengthens Pennsylvania’s entire affordable housing ecosystem. 🏠🔥✅

Leave a Reply